|
缺点,没有地铁,配套发展还需要几年才能发展起来,目前5个楼盘,中海匯德里和华润幸福里润园的去年二批拿地,也马上清盘了,今年三批的三个楼盘,下个月中海的富华里富园,低密洋房就入市了,面积80-140平米,2-4居,均价8.5万,总价680万起,首付272万起,目前正在验资排卡,关注的可以参团有额外购房优惠,两个8.2万的小高层,过完年入市,面积82平米两居起步,总价672万起,首付269万起。 特别声明:以上文章内容仅代表作者本人观点,不代表新浪网观点或立场。如有关于作品内容、版权或其它问题请于作品发表后的30日内与新浪网联系。
100平米以上的四居,都是经典款眼睛户型,全明格局,南向三面宽,双卧客厅朝南眼睛户型,但是户型上面,没有中海富华里户型更好一些,毕竟四个拐角四个卧室,设计的更简单,实用一些,居住更舒服,市场认可度更高。 001 6地块规划幼儿园,占地4000平,建面3200平,控高16米,容积率0.8 朝阳平房乡44地块1、首农,2、城建兴华,3、中建城发(中建八局),4、厦门国贸,5、保利+建工,6、中海,7、金茂;8、中建玖合(中建二局);9、金隅;10.金地;11.中建五局 生活配套
朝阳奶西321地块1、中建智地(中建一局),2、招商,3、中海,4、金茂+首开,5、华润(第一手报价),6、中建玖和(中建二局),7、绿城(第二手报价),8、金隅、9、中建信和(中建五局)石景山老古城1626地块1、建工,2、招商,3、厦门国贸,4、中海,5、金茂门头沟永定镇6050地块中建信和(中建五局)+中建方程通州永顺邓家窑6007地块1、通州房开,2、城建兴华,3、金茂本次出让的6宗地,土地总面积约14.86万㎡,总建面31.93万㎡,起始价122.9亿元。共42家房企及联合体报名参与,金茂目前是报名最多的,超越了中海。 海开云颂项目总占地面积52463.4㎡,其中: 地块信息 周边学校:清华附中永丰分校,中关村第三小学,中关村第二小学
醇熟商业:海淀悦界主题街区,中关村壹号商业街,海淀大悦城(在建中) 14栋楼,887户
其中,中海拿下了两宗地,为0013/0015地块 海开0019地块容积率2.4,销售指导价8.2万/平,海开澐颂 0015地块(中海)住宅用地 四批的马上开拍了,三批的也着急了,虽然四批地块少,但是加速开盘,对自己没有什么损失,今天说一下,海淀永丰19地块,海开地块。 北面0018地块为多功能用地,规划配置1300平的托老所、100-200平儿童活动场地、500平的商业等。 交通配套: 南面的0019地块为住宅用地 户型信息 北京第四批土拍 地块报名企业: 中海0013地块容积率1.5,销售指导价8.5万/平,中海富华里富园 0018多功能用地,控高24米,容积率2.2 周边医疗:北京大学国际医院,中国人民解放军309医院 四横(玉河路、北清路、后厂村路、北五环) 朝阳平房乡45地块1、首农,2、中建智地(中建一局),3、城建兴华,4、中建城发(中建八局)、5、首开,6、京宸盛汇,7、保利+建工,8、厦门国贸,9、中海,10、金茂,11、中建玖和(中建二局);12、金隅;13、中建信和(中建五局),14、金地 外立面 100平米以下的都是南向两面宽,没有太大优点,有没有什么缺点,属于市场正常发挥。
前天四批挂地竞拍时间已经确定下来,下周二,11月29日,早上9.30正式现场竞拍,四批一共6宗地块,现场竞拍五宗,门头沟一宗已经被中建五局成交,看看本次的六宗地块 户型占比 户型总结 海开拿下了一宗地,为0019地块。 中海0015地块容积率2.4,销售指导价8.2万/平,中海富华里3汇园
0019(海开)住宅用地 148和153平米,舒适四居,全明格局的四叶草户型
科创海淀:中关村软件园+永丰产业基地+中关村环保科技师范园+中关村壹号+航天城 海淀F2地块周边配套规划: 仿砖+铝合金窗框+真石漆+石材 周边生态:温榆河支流南沙河,翠湖国家城市湿地公园,北京市稻香湖公园 四纵(永丰路、友谊路、京新高速、京藏高速) 项目楼盘信息 现场竞拍五宗
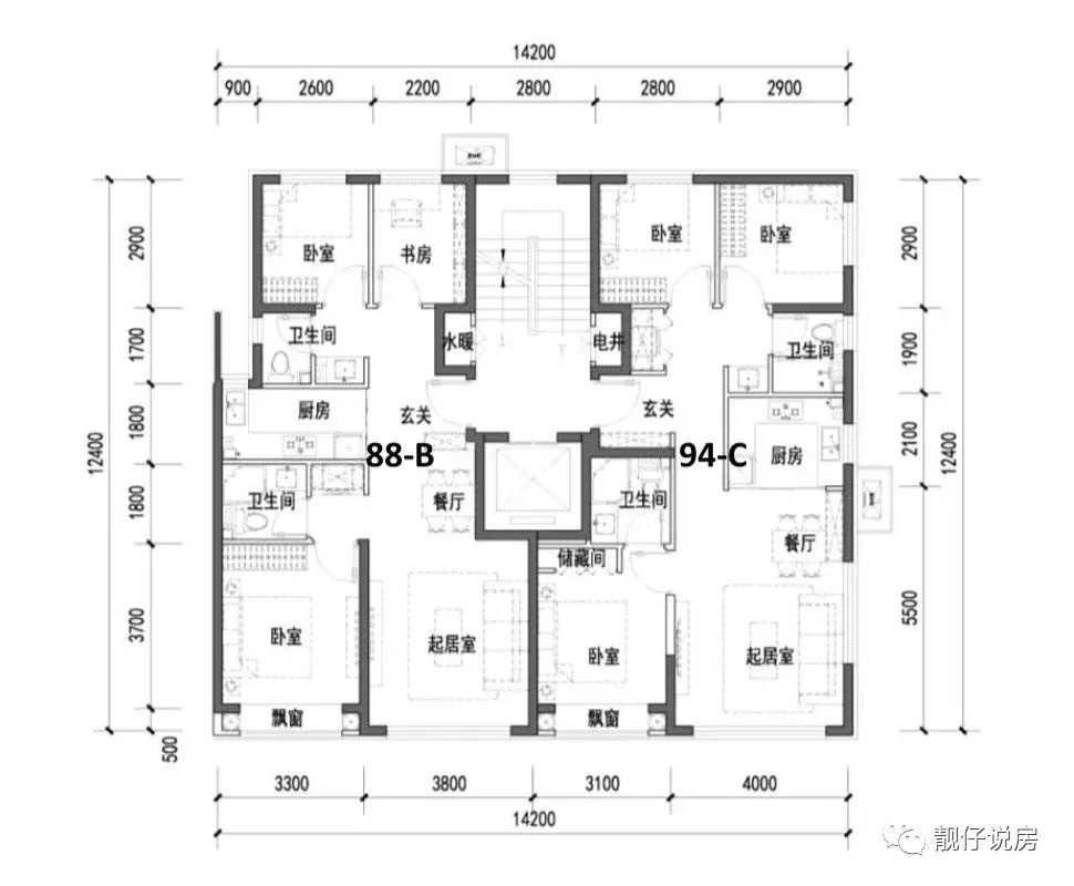
82平两居,主卧客厅朝南,南北通透, 119和129平,精致四居,三阳开泰,四叶草户型,全明格局 88和94平,实用三居,带一个明卫 0013地块(中海)住宅用地,规划新增街坊路,
三个地块挨着,其中 0017地块规划小学用地 海淀目前供地主要就是永丰了,优点,就是上车海淀门款比较低,有洋房,有小高层,选择性比较多。 大家都关注哪个地块,看房联系户型图上售楼员,备注地块名称。
看看六宗报名情况
面积有82平两居,88和93平三居,120和130平四居,149和154平四居(楼王、南向四面宽带飘窗) 销售指导价为8.2万/平,总价672万起,首套首付269万起。 |



















